de 9:00 a 20:00

Lunes a Viernes

C/ Amberes, 8

10005 Cáceres

927627008

info@edifisa.es

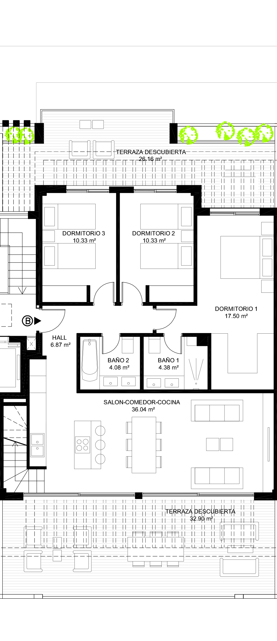
El Mirador de Estepona. Escalera 1 Vivienda Segundo B

Arroyo de las Cañas, Estepona, Málaga, Andalucía, 29689, España
  • Descripción
  • Dirección
  • Detalles
  • Caracteristicas
  • Planos

Descripción

El edificio de 12 viviendas se emplaza en la parte suroeste de la parcela buscando en la fachada frontal el soleamiento de tarde y las vistas hacia el mar. Al mismo tiempo la fachada posterior cuenta con una gran separación a las edificaciones vecinas y vistas sobre las zonas comunes.

La fachada suroeste se configura con elementos lineales de cristal y panelado con acabado de madera con un diseño horizontal que busca potenciar las vistas y que gracias a los grandes ventanales difumina la separación del interior y las grandes terrazas principales.

Por otro lado, las terrazas que abren a las zonas comunes configuran una segunda fachada con un componente fuerte de vegetación y elementos volumétricos de diseño que configuran un espacio secundario de relajación, complemento perfecto de los dormitorios.

Las viviendas se configuran de forma modular, de forma que el proyecto sea flexible para alcanzar las demandas de diferentes tipos de clientes.

Los tipos pueden intercambiarse libremente según se desarrollen las futuras ventas, dado que la fachada queda configurada con los mismos huecos y grandes ventanales.

Existen dos tipos principales: los módulos de esquina (con 2 subtipos) y los módulos centrales (con 3 subtipos). Los subtipos los conforman viviendas diferentes con opciones de 2 y 3 dormitorios, y grandes salones comedores cocinas que se desarrollan en toda la fachada principal o de forma que conecten la terraza principal y secundaria, dinamizando su uso y permitiendo disfrutar de las dos visuales del proyecto (vistas al mar e impresionantes zonas comunes).

 

Para las esquinas se proponen dos tipos de 3 dormitorios:

El Tipo E1, propone un gran espacio frontal abierto a la terraza suroeste, con dos dormitorios secundarios de generosas dimensiones y un dormitorio principal en suite con vestidor.

 

El Tipo E2, propone un gran espacio transversal que elimina al mínimo los espacios de pasillo, y permite aprovechar las dos terrazas del proyecto, creando un gran espacio estancial, al mismo tiempo que permite también disfrutar de las vistas al mar al dormitorio en suite principal.

 

Para los módulos centrales se proponen dos tipos de 2 dormitorios y uno de 3 dormitorios.

El Tipo C1, propone un gran espacio frontal abierto a la terraza suroeste, con dos dormitorios secundarios y un dormitorio principal en suite con vestidor.

 

El Tipo C2, propone un gran espacio transversal que elimina al mínimo los espacios de pasillo, y permite aprovechar las dos terrazas del proyecto, creando un gran espacio estancial, al mismo tiempo que permite también disfrutar de las vistas al mar al dormitorio en suite principal.

 

El Tipo C3, propone un gran espacio frontal abierto a la terraza suroeste, con un dormitorio secundario de generosas dimensiones y un dormitorio principal en suite con dos vestidores y un gran baño.

  • Dirección: Arroyo del las Cañas, Estepona
  • Ciudad: Arroyo de las Cañas, Estepona (Málaga)
  • Estado / Condado: Andalucía
  • Código postal: 29689
  • País: España

Detalle

Actualizado en septiembre 9, 2020 a 10:57 am

  • Tamaño de propiedad: 103 m²
  • Habitaciones: 3
  • Baños: 2
  • Garaje: 1
  • Tamaño del garaje: 14 m²
  • Tipo de propiedad: Piso
  • Estado de la propiedad: Venta

Detalles adicionales

  • Piscina comunitaria: 27 m2

Planos de planta

Vivienda Escalera 1 Segundo B

  • Tamaño: 103,33 m²
  • Habitaciones: 3
  • Baños: 2